Laan Copes van Cattenburch 54 A Onder bod

2585 GC Den Haag - Archipelbuurt

Kenmerken

Onder bod
Vraagprijs
€ 275.000 k.k.
Wijk
Archipelbuurt
Locatie
Aan drukke weg, In woonwijk
Postcode
2585 GC Den Haag
Woningtype
Bovenwoning
Bouwjaar
1890
Soort bouw
Bestaande bouw
Parkeren
Betaald parkeren, Openbaar parkeren, Parkeervergunning
Kamers
2
Badkamers
1
Oppervlakte
39m²
Inhoud
180m³
Oplevering
Per direct

Stel een vraag   Download Brochure


Omschrijving

OP TOPLOCATIE IN DE FRAAIE ARCHIPELBUURT GELEGEN FRIS EN VERZORGD 2-KAMER (1 SLAAPKAMER) APPARTEMENT OP DE EERSTE WOONLAAG VAN EEN KARAKTERISTIEK HERENHUIS AAN DE FRAAIE LAAN COPES VAN CATTENBURCH!

Betaalbaar wonen in één van de beste wijken van Den Haag is mogelijk in dit frisse en lichte twee kamer appartement wat is gesitueerd aan de rustige achterzijde van een fraai herenhuis. De locatie is meer dan top; Om de hoek van de gezellige Bankastraat met gezellige winkels en terrasjes, op loopafstand van de Scheveningse Bosjes en het Haagse centrum en op slechts enkele minuten afstand van station Den Haag Centraal, uitvalswegen of het Scheveningse strand!

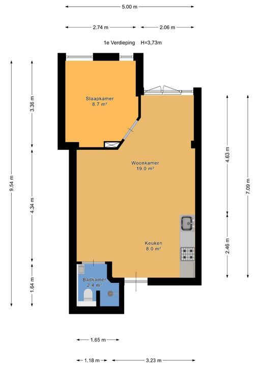
Indeling:
Gemeenschappelijk entree met postvakken en meterkasten, trap naar de eerste verdieping. Overloop met vast kast waarin zich de gemeenschappelijke CV-ketel en gemeenschappelijke wasmachine en droger bevinden. Entree van dit aan de rustige achterzijde gelegen appartement. Ruime en lichte woon-/eetkamer met fraai hoog plafond en Frans balkon aan de achterzijde. Moderne keuken in rechte opstelling voorzien van oven, gaskookplaat, afzuigkap en losse koelkast. Prima formaat slaapkamer. Moderne badkamer voorzien van inloopdouche met rainshower, wastafelmeubel en toilet.

Bijzonderheden:
- Eigen grond
- Energielabel A+
- Beschermd stadsgezicht
- Actieve VvE, bijdrage € 97,20 per maand
- Geheel voorzien van houten kozijnen, deels met voorzetramen
- Verwarming en warm water via gemeenschappelijke CV ketel met hybride warmtepomp
- Voorschot gas en elektra € 112,- per maand
- Vanwege het bouwjaar zijn de ouderdom- en materialenclausule van toepassing
- Niet zelf bewoond clausule van toepassing
- Oplevering per direct mogelijk

Deze informatie is door ons met de nodige zorgvuldigheid samengesteld. Onzerzijds wordt echter geen enkele aansprakelijkheid aanvaard voor enige onvolledigheid, onjuistheid of anderszins, dan wel de gevolgen daarvan. Alle opgegeven maten en oppervlakten zijn indicatief.

Locatie

[{"address": "Laan Copes van Cattenburch54","zipCode": "2585 GC","city": "Den Haag","lat": 52.0913823,"lng": 4.3061002,"heading": 0,"pitch": 0}]

Kenmerken

Vraagprijs
€ 275.000 k.k.
Status
Onder bod
Oplevering
Per direct

Bouw

Soort appartement
Bovenwoning, Appartement
Woonlaag
2
Soort bouw
Bestaande bouw
Bouwjaar
1890
Onderhoud binnen
Goed
Onderhoud buiten
Goed
Bijzonderheden
Beschermd stads- of dorpgezicht

Oppervlakten en inhoud

Woonoppervlakte
39m²
Inhoud
180m³

Indeling

Aantal kamers
2
Aantal badkamers
1
Aantal verdiepingen
1
Voorzieningen
Glasvezel kabel, Natuurlijke ventilatie, TV-Kabel

Energie

Energielabel
A+
Isolatie
Muurisolatie, Voorzetramen
Warm water
C.V.-ketel
Verwarming
C.V.-ketel, Warmtepomp
Ketel
(Combi-ketel, Eigendom)

Buitenruimte

Ligging
Aan drukke weg, In woonwijk

Garage

Reageer

Uw bericht is naar ons verzonden. Wij nemen zo snel mogelijk contact met u op.

Sorry, we kunnen helaas niet met zekerheid vaststellen of u een mens of een geautomatiseerde bot/spammer bent. Hierdoor kunnen we het formulier dat u heeft ingevuld niet verzenden. Probeer het opnieuw of neem direct contact op met de makelaar via e-mail.

Er is iets mis gegaan met het versturen van het formulier.
Controleer of u alle velden (goed) heeft ingevoerd en probeer het nog een keer.

recaptcha
reCAPTCHA
PrivacyTerms


Direct contact?

Bel +31(0)70 3 495 495

Ook via WhatsApp bereikbaar!
Start een gesprek op 070-3495495

Maandag t/m vrijdag van 9:00 tot 17:30 uur


Vergelijkbare woningen

Verkocht
Johannes Camphuijsstraat 308
2593 CZ Den Haag
€ 325.000 k.k.
Verkocht
Smaragdhorst 94
2592 RS Den Haag
€ 299.000 k.k.
Verkocht
Denenburg 149
2591 AC Den Haag
€ 310.000 k.k.
Verkocht
Barnsteenhorst 380
2592 ES Den Haag
€ 275.000 k.k.