Carrer Fruita 17

Castello D’Empuries Girona

Kenmerken

Huurprijs
€ 700 p.m. ex.
Inrichting
Gemeubileerd
Locatie
Aan rustige weg, In centrum, Vrij uitzicht
Postcode
Castello D’Empuries Girona
Woningtype
Bovenwoning
Bouwjaar
1971-1980
Soort bouw
Bestaande bouw
Tuin
Ja, Zonneterras, Zuidwest, 700×800cm
Balkon
Ja
Parkeren
Openbaar parkeren
Kamers
2
Slaapkamers
2
Badkamers
1
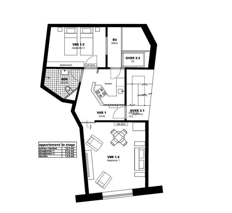
Oppervlakte
57m²
Inhoud
143m³
Oplevering
In overleg

Stel een vraag   Download Brochure


Omschrijving

Wij bieden aan dit topappartement in het pittoreske dorpje Castello Dé Empuries. Het appartement ligt op de derde etage, is volledig gerenoveerd en voorzien van alle moderne apparatuur en gemakken. Begin 2026 zal er een lift worden geïnstalleerd.

De woonkamer is volledig af te sluiten doormiddel van een schuifdeur. In de woonkamer staat een gezellige ronde eetkamertafel met 4 stoelen. Twee heerlijke fauteuils en een digitale t.v. Er staat een kledingkast, genoeg opbergruimte voor diegene die slapen op de luxe (makkelijk te openen) ruime tweepersoons 160x200 slaapbank. Ook hier hangt een airco (zowel warm als koud).

Een keuken met elektrische kookplaat, koelkast en afwasmachine. De badkamer heeft een douche (boller 80 liter) een wastafel meubel met lades en een toilet.

Een heerlijke lichte slaapkamer met een tweepersoonsbed, nachtkastjes een ingebouwde kledingkast en een airco (zowel warm als koud).

Het appartement is licht en fris en met zorg en aandacht ingericht tot een ontspannen woonsfeer.

Het zonovergoten ruime dakterras bevind zich er direct boven, inpandig doormiddel van het trappenhuis te bereiken. Hierop bevindt zich een houten tuinmeubel set met tafel, bank en zonnestoelen. Hierop bevinden zich ook de wasmachine en droger.

Kortom het appartement ligt in een pittoresk dorpje, je bevindt je tussen de Spanjaarden je voelt het echte Spaanse leven. Op 10 minuten (op de fiets) ligt het strand van Empuriabrava.
Bekende plaatsen in de buurt, Rosas en Figeures. Op 45 minuten rijden ligt de prachtige stad Girona en op 1,5 uur rijden Barcelona.

Watersport liefhebbers kunnen hun hart ophalen, wandelaars kunnen prachtige natuurwandelingen maken, cultuur liefhebbers kunnen uren kijken naar bekende kunstenaars in de diverse musea. Voor golf liefhebbers zijn er in de omgeving een aantal mooi aangelegde golfbanen. O.A. Perelada. Winkelen in de kleine straatjes of struinen langs de plaatselijke marktjes er is voor ieder wat wils.

Locatie

[{"address": "Carrer Fruita 17","zipCode": "Castello D’Empuries","city": "Girona","lat": 42.2590277,"lng": 3.0757682,"heading": 0,"pitch": 0}]

Kenmerken

Huurprijs
€ 700 p.m. ex.
Inrichting
Gemeubileerd
Status
Beschikbaar
Oplevering
In overleg

Bouw

Soort appartement
Bovenwoning, Appartement
Woonlaag
3
Soort bouw
Bestaande bouw
Bouwjaar
1971-1980
Onderhoud binnen
Uitstekend
Onderhoud buiten
Uitstekend
Bijzonderheden
Toegankelijk voor ouderen

Oppervlakten en inhoud

Woonoppervlakte
57m²
Inhoud
143m³

Indeling

Aantal kamers
2
Aantal slaapkamers
2
Aantal badkamers
1
Aantal verdiepingen
1
Voorzieningen
Airconditioning, Alarminstallatie, Buitenzonwering, Lift, Mechanische ventilatie, Rolluiken, Satellietschotel

Energie

Isolatie
Muurisolatie
Warm water
Elektrische boiler eigendom
Verwarming
Hete lucht verwarming

Buitenruimte

Ligging
Aan rustige weg, In centrum, Vrij uitzicht
Balkon
Ja
Tuin
Zonneterras
Zonneterras
Zuidwest, 56m², 700×800cm

Garage

Reageer

Deze woning bezichtigd en wilt u uw interesse kenbaar maken? Klik dan op de inschijven button.

Inschrijven

Voor alle andere vragen kunt u het onderstaande formulier invullen.

Uw bericht is naar ons verzonden. Wij nemen zo snel mogelijk contact met u op.

Sorry, we kunnen helaas niet met zekerheid vaststellen of u een mens of een geautomatiseerde bot/spammer bent. Hierdoor kunnen we het formulier dat u heeft ingevuld niet verzenden. Probeer het opnieuw of neem direct contact op met de makelaar via e-mail.

Er is iets mis gegaan met het versturen van het formulier.
Controleer of u alle velden (goed) heeft ingevoerd en probeer het nog een keer.

recaptcha
reCAPTCHA
PrivacyTerms


Direct contact?

Bel +31(0)70 3 495 490

Ook via WhatsApp bereikbaar!
Start een gesprek op 070-3495495

Maandag t/m vrijdag van 9:00 tot 17:30 uur