Wassenaarseweg 179

2596 CR Den Haag - Benoordenhout

Kenmerken

Vraagprijs
€ 950.000 k.k.
Wijk
Benoordenhout
Locatie
Aan rustige weg, In woonwijk
Postcode
2596 CR Den Haag
Woningtype
Tussenwoning
Bouwjaar
1938
Soort bouw
Bestaande bouw
Tuin
Ja, Achtertuin, Zuidoost, 610×913cm
Balkon
Ja
Parkeren
Betaald parkeren, Openbaar parkeren, Parkeervergunning
Kamers
7
Slaapkamers
5
Badkamers
2
Oppervlakte
194m²
Perceel
155m²
Inhoud
745m³
Oplevering
Per direct

Stel een vraag   Download Brochure


Omschrijving

ROYAAL EN SFEERVOL 7-KAMER JAREN '30 HERENHUIS IN HET FRAAIE "BENOORDENHOUT" MET TWEE BADKAMERS VOORTUIN, ACHTERTUIN EN SCHUUR GELEGEN AAN DE RAND VAN HET PRACHTIGE LANDGOED "CLINGENDAEL".

Een royaal herenhuis dat met enige liefde en aandacht weer geheel naar eigen wens en smaak kan worden gemoderniseerd tot een heerlijk familiehuis. De ligging is uitermate goed, aan de rand van het prachtige landgoed Clingendael, op loopafstand van de gezellige Van Hoytemastraat met haar prettige horeca en specialiteiten winkels. Met zowel auto, fiets als het openbaar vervoer zijn het heerlijke Haagse centrum, centraal station, uitvalswegen of het strand te bereiken.

Indeling:
Via de voortuin naar de voordeur, ruime vestibule met originele wandtegels, hal met garderobenis. Zeer ruime woon-/eetkamer ensuite met erker aan de voorzijde, diverse vaste kasten in het midden en aan de achterzijde toegang tot de zonnige tuin op het zuidoosten met stenen schuur. Aan de achterzijde gelegen keuken welke is voorzien van diverse inbouwapparatuur en tevens toegang geeft tot de achtertuin. Separaat toilet met fontein. Trap naar de eerste verdieping.

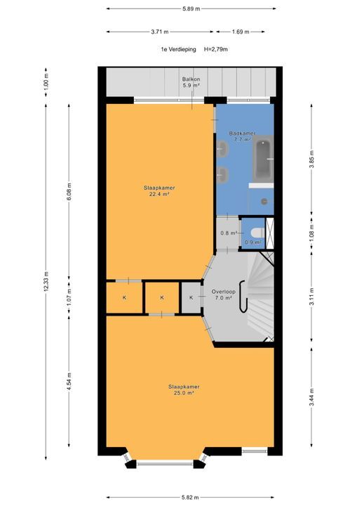
Eerste verdieping:
Overloop met vaste kast, royale slaapkamer aan de voorzijde over de gehele breedte met erker en diepe vaste kast. Tweede zeer ruime slaapkamer aan de achterzijde met diepe vaste kast en toegang tot het ruime, zonnige balkon aan de achterzijde over de gehele breedte. De aan de achterzijde gelegen badkamer is vanuit zowel de overloop als de de slaapkamer te bereiken en voorzien van ligbad, hoekdouche en dubbele vaste wastafel. Separaat toilet met fontein. Trap naar de tweede verdieping.

Tweede verdieping:
Overloop met vaste kast, prima formaat slaapkamer aan de voorzijde met vaste kast, badkamer met hoekdouche, vaste wastafel en wasmachine aansluiting. Ruime slaapkamer aan de achterzijde met vaste kast en achterzijkamer met vaste kast.

Kelder:
Onder het thuis gelegen ruime kelder bestaande uit twee delen. Hier bevinden zich tevens de groepenkast en CV-combiketel.

Bijzonderheden:
- Eigen grond
- Energielabel D
- Woonoppervlak 194 m2
- Rijksbeschermd stadsgezicht
- Verwarming middels CV-combiketel Nefit ecomline HR ca. 2005
- Geheel voorzien van aluminium en kunststof kozijnen met dubbel glas
- Elektrische installatie bestaande uit 8 groepen en 2 aardlekschakelaars
- Vanwege het bouwjaar zijn de ouderdom- en materialenclausule van toepassing
- Niet zelf bewoond clausule van toepassing, woning is verhuurd geweest
- Oplevering per direct mogelijk

Deze informatie is door ons met de nodige zorgvuldigheid samengesteld. Onzerzijds wordt echter geen enkele aansprakelijkheid aanvaard voor enige onvolledigheid, onjuistheid of anderszins, dan wel de gevolgen daarvan. Alle opgegeven maten en oppervlakten zijn indicatief.

Locatie

[{"address": "Wassenaarseweg179","zipCode": "2596 CR","city": "Den Haag","lat": 52.0952419,"lng": 4.3280242,"heading": 0,"pitch": 0}]

Kenmerken

Vraagprijs
€ 950.000 k.k.
Status
Beschikbaar
Oplevering
Per direct

Bouw

Soort woonhuis
Herenhuis, Tussenwoning
Soort bouw
Bestaande bouw
Bouwjaar
1938
Onderhoud binnen
Redelijk
Onderhoud buiten
Redelijk
Bijzonderheden
Beschermd stads- of dorpgezicht

Oppervlakten en inhoud

Woonoppervlakte
194m²
Perceeloppervlakte
155m²
Overig oppervlakte
21m²
Inhoud
745m³

Indeling

Aantal kamers
7
Aantal slaapkamers
5
Aantal badkamers
2
Aantal verdiepingen
4
Voorzieningen
Natuurlijke ventilatie, TV-Kabel

Energie

Energielabel
D
Isolatie
Dubbel glas
Warm water
C.V.-ketel
Verwarming
C.V.-ketel
Ketel
Nefit Ecomline HR (2005, Eigendom)

Buitenruimte

Ligging
Aan rustige weg, In woonwijk
Balkon
Ja
Tuin
Achtertuin, Voortuin
Achtertuin
Zuidoost, 50m², 610×913cm
Schuur
Vrijstaand steen

Garage

Reageer

Uw bericht is naar ons verzonden. Wij nemen zo snel mogelijk contact met u op.

Sorry, we kunnen helaas niet met zekerheid vaststellen of u een mens of een geautomatiseerde bot/spammer bent. Hierdoor kunnen we het formulier dat u heeft ingevuld niet verzenden. Probeer het opnieuw of neem direct contact op met de makelaar via e-mail.

Er is iets mis gegaan met het versturen van het formulier.
Controleer of u alle velden (goed) heeft ingevoerd en probeer het nog een keer.

recaptcha
reCAPTCHA
PrivacyTerms


Direct contact?

Bel +31(0)70 3 495 495

Ook via WhatsApp bereikbaar!
Start een gesprek op 070-3495495

Maandag t/m vrijdag van 9:00 tot 17:30 uur


Vergelijkbare woningen

Verkocht
Columbusstraat 136
2561 AS Den Haag
€ 795.000 k.k.
Verkocht
Gerard Reijnststraat 68
2593 ED Den Haag
€ 800.000 k.k.
Verkocht
Akeleistraat 2
2565 NX Den Haag
€ 795.000 k.k.
Verkocht
Gerard Reijnststraat 60
2593 ED Den Haag
€ 919.000 k.k.